宇治市槙島町南落合 中古戸建
- 価格
- 1280万円
- 中古戸建
- 間取
- 4DK
|
|
| 所在地 | 京都府宇治市槙島町南落合 |
|---|---|
| 交通 | 近鉄京都線向島駅 徒歩18分 |
| 築年月 | 2004/2 | 新築/中古 | 中古 |
|---|---|---|---|
| 面積 | 72.3m² | 計測方式 | |
| バルコニー | m² | 向き | |
| 建物階数 | 地上3階 | 部屋階数 | 階 |
| 部屋/区画番号 | 総戸/区画数 | ||
| 建物構造 | 鉄骨造 | ||
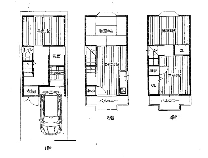
| 間取内容 | 1階洋室6畳 2階DK7.5畳 2階和室6畳 3階洋室8畳 3階洋室6畳 |
||
| 駐車場 | 空有 ✫駐車1台可 | 取引態様 | 仲介 |
| 引渡/入居時期 | 相談 | 現況 | 居住中 |
| 地目 | 宅地 | 用途地域 | 第一種住居 |
| 都市計画 | 市街化区域 | 地勢 | |
| 土地面積 | 45.95m² | 土地面積計測方式 | 公簿 |
| 私道負担面積 | ほかに約0.74m² | ||
| 建ぺい率 | 60% | 容積率 | 160% |
| 土地権利 | 所有権 | 接道状況 | 一方 |
| 接道方向1 | 南 | 接道間口1 | 約3.7m |
| 接道種別1 | 接道幅員1 | 約4m | |
| 位置指定道路1 | 位置指定道路 | ||
| 周辺環境 | |||
| 設備・条件 | バス・トイレ別 室内洗濯機置き場 都市ガス 公営水道 排水下水 駐車場有 出窓 バルコニー ✫南向き |
||
| 物件番号 | 070917 | ||
| 自社物 | 先物 | 状態 | |
※物件掲載内容と現況に相違がある場合は現況を優先と致します。










