京都市伏見区醍醐東大路町 中古戸建new
- 価格
- 4180万円
- 中古戸建
- 間取
- 5LDK
|
|
| 所在地 | 京都府京都市伏見区醍醐東大路町 |
|---|---|
| 交通 | 京都地下鉄東西線醍醐駅 徒歩12分 バス(「醍醐新町」停 停歩2分) |
| 築年月 | 1977/1 | 新築/中古 | 中古 |
|---|---|---|---|
| 面積 | 180.59m² | 計測方式 | |
| バルコニー | m² | 向き | |
| 建物階数 | 地上2階 | 部屋階数 | 階 |
| 部屋/区画番号 | 総戸/区画数 | ||
| 建物構造 | 木造 | ||
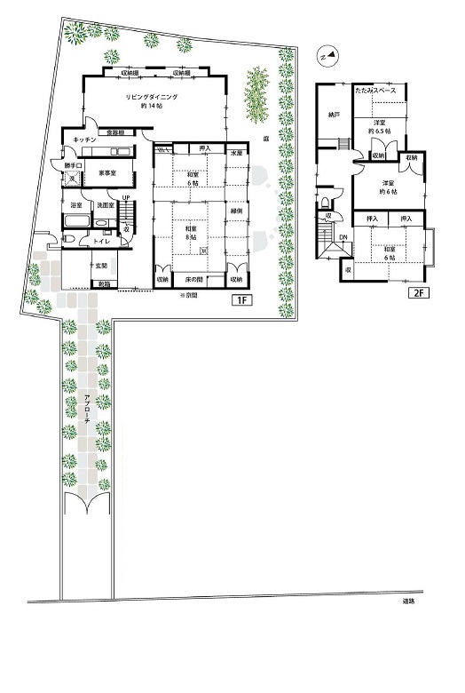
| 間取内容 | 1階LD14畳 1階K 1階和室8畳 1階和室6畳 2階和室6畳 2階洋室6畳 2階洋室6.5畳 2階S +2S+庭 |
||
| 駐車場 | 取引態様 | 仲介 | |
| 引渡/入居時期 | 相談 | 現況 | 空家 |
| 地目 | 宅地 | 用途地域 | |
| 都市計画 | 市街化区域 | 地勢 | 平坦 |
| 土地面積 | 301.97m² | 土地面積計測方式 | 公簿 |
| 土地権利 | 所有権 | 接道状況 | |
| 接道方向1 | 南 | 接道間口1 | 約3.01m |
| 接道種別1 | 公道 | 接道幅員1 | 約6.60m |
| 国土法届出 | 不要 | ||
| 周辺環境 | 醍醐小学校 醍醐中学校 | ||
| 設備・条件 | バス・トイレ別 都市ガス 公営水道 排水下水 ■茶室のある邸宅 ※建ぺい率:第一種低層住居専用地域:50%(用途地域による) 40%(風致地区による) :第二種中高層住居専用地域:60%(用途地域による) 40%(風致地区による) ※容積率:第一種低層住居専用地域:80% :第二種中高層住居専用地域:200% ※写真内の動産類は販売価格に含まれません。 ※売主の契約不適合責任は免責とします。 ※本物件は現状有姿での取引とします。 |
||
| 物件番号 | 080405 | ||
| 自社物 | 先物 | 状態 | |
※物件掲載内容と現況に相違がある場合は現況を優先と致します。












